優質的服務流程
· quality of service processes ·

需求溝通傾聽客戶需求,了解用戶使用環境和現場工況
方案設計根據現場實際工況,針對性出具解決方案
合同簽訂技術和商務規范確認,簽訂合作協議
產品制作選擇最優質的元器件,嚴格按照技術協議
調試安裝現場規范安裝,靜態動態調試,分析儀運行
售后服務后續維護,持續跟進,終身維修

全國熱線
銷售熱線
公司地址山東濟南市槐蔭區太平河南路1567號均和云(yun)谷濟南匯(hui)智港(gang)6號樓
摘要(yao):全(quan)面(mian)介紹了水泥工(gong)業廢氣(qi)中粉(fen)塵、氮氧(yang)化物、二(er)氧(yang)化硫(liu)三項主要(yao)指標(biao)及其(qi)超(chao)低(di)(di)排放(fang)的限值(zhi)、技術路線可行性(xing)探(tan)討和指標(biao)實(shi)踐效果。主要(yao)參考燃煤鍋爐相關超(chao)低(di)(di)排放(fang)的路線和措施(shi)(shi),利用新(xin)(xin)材(cai)料、新(xin)(xin)技術的不(bu)斷發展進步,結合水泥生產工(gong)藝及廢氣(qi)特性(xing)提出了兼顧水泥生產、節能降耗和超(chao)低(di)(di)排放(fang)的綜合實(shi)施(shi)(shi)新(xin)(xin)思(si)路。
關鍵詞:水(shui)泥工業廢(fei)氣;除塵(chen);脫硫;脫硝;超(chao)低(di)排放
國(guo)家環境保護力(li)度不斷加大,電力(li)、鋼鐵、水泥、垃圾(ji)焚(fen)燒等工業(ye)的(de)廢(fei)氣(qi)污染物(wu)排(pai)放控制標準日益(yi)嚴格,各(ge)行業(ye)實(shi)行廢(fei)氣(qi)超低排(pai)放勢在必行。
“超低排(pai)(pai)放(fang)”的(de)概念是在火電(dian)廠燃煤鍋爐(lu)廢氣治理(li)領域提出的(de),比照天然氣燃氣輪機組(zu)標準設計了排(pai)(pai)放(fang)限(xian)值(zhi),比目前GB13223-2011《火電(dian)廠大氣污染(ran)物(wu)排(pai)(pai)放(fang)標準》中規(gui)定(ding)的(de)重點(dian)地(di)區燃煤鍋爐(lu)特別排(pai)(pai)放(fang)限(xian)值(zhi)更低。
GB13223-2011《火電(dian)廠大氣污染物排放(fang)標準》確定(ding)的(de)燃煤鍋爐超低排放(fang)值見(jian)表(biao)1。

目(mu)前火(huo)電(dian)(dian)行(xing)(xing)業(ye)絕大(da)部分企業(ye)已(yi)經成功(gong)實(shi)現了(le)(le)廢氣超低(di)排放,主要(yao)是煤(mei)電(dian)(dian)鍋爐(lu)(lu)運行(xing)(xing)中(zhong),綜合采用了(le)(le)多種污染(ran)物高效協(xie)同脫除技術,例如(ru)90%以上鍋爐(lu)(lu)采用SCR+電(dian)(dian)袋除塵器+石灰石膏(gao)濕法脫硫技術,實(shi)現了(le)(le)粉塵排放≤5mg/m3(標),NOx≤50mg/m3(標),SO2≤35mg/m3(標)。系統(tong)運行(xing)(xing)效果良好,說明技術是成熟可靠的,現行(xing)(xing)超低(di)排放限值很可能上升為新的國家標準。水泥行(xing)(xing)業(ye)也必將全面實(shi)施。
1水泥(ni)窯廢氣排(pai)放現(xian)狀及超低排(pai)放指標(biao)設定(ding)
探討“超(chao)低(di)排(pai)放(fang)”受到了環保(bao)業(ye)界、地方政(zheng)府乃至國家的(de)(de)高度重視(shi),是新環保(bao)標(biao)準(zhun)(zhun)修訂(ding)的(de)(de)基礎(chu)。在(zai)國家青山綠(lv)水的(de)(de)生(sheng)(sheng)態文明建設的(de)(de)新政(zheng)策下,各行(xing)(xing)業(ye)環保(bao)都在(zai)進行(xing)(xing)“超(chao)低(di)排(pai)放(fang)”的(de)(de)嘗試。從政(zheng)府加強環境保(bao)護和(he)人民追求(qiu)美好生(sheng)(sheng)活的(de)(de)角(jiao)度出發,這個限(xian)值(zhi)肯定是越低(di)越好,但應根(gen)據具體(ti)工(gong)業(ye)工(gong)藝過程的(de)(de)差(cha)異,研(yan)究最(zui)適合(he)的(de)(de)環保(bao)實用技術措施,科學提出最(zui)合(he)理的(de)(de)低(di)限(xian)值(zhi)。水泥(ni)生(sheng)(sheng)產主要污(wu)染物(wu)是粉(fen)塵(chen)、氮氧化物(wu)及(ji)二氧化硫(liu),部(bu)分地區(qu)水泥(ni)廢氣中二氧化硫(liu)含量還相(xiang)當高。現有(you)的(de)(de)GB4915-2013《水泥(ni)工(gong)業(ye)大(da)氣污(wu)染物(wu)排(pai)放(fang)標(biao)準(zhun)(zhun)》規定在(zai)重點地區(qu)主要指標(biao)為:粉(fen)塵(chen)排(pai)放(fang)≤20mg/m3(標(biao)),NOx≤320mg/m3(標(biao)),SO2≤100mg/m3(標(biao))。對比電力行(xing)(xing)業(ye)排(pai)放(fang)標(biao)準(zhun)(zhun),水泥(ni)行(xing)(xing)業(ye)標(biao)準(zhun)(zhun)相(xiang)對寬松。
按(an)照國(guo)家(jia)(jia)環保排(pai)(pai)放(fang)(fang)監測(ce)要(yao)求,所有(you)水泥生產線主(zhu)要(yao)排(pai)(pai)塵(chen)(chen)點,特(te)別是窯(yao)頭、窯(yao)尾及生料磨,全部設置了廢氣(qi)排(pai)(pai)放(fang)(fang)在線監測(ce),粉塵(chen)(chen)、氮氧(yang)(yang)化物、二(er)(er)氧(yang)(yang)化硫等有(you)害(hai)物排(pai)(pai)放(fang)(fang)值實時傳(chuan)送到(dao)當地及國(guo)家(jia)(jia)環保監測(ce)部門(men),限值一般按(an)功(gong)能區和地方(fang)政府的(de)規定(ding)執(zhi)行。雖然地方(fang)政府的(de)規定(ding)限值一般都低于國(guo)家(jia)(jia)標(biao)準限值,但實際上都沒能達到(dao)燃煤發電行業(ye)超低排(pai)(pai)放(fang)(fang)值,對(dui)氮氧(yang)(yang)化物和二(er)(er)氧(yang)(yang)化硫基本按(an)照國(guo)家(jia)(jia)排(pai)(pai)放(fang)(fang)標(biao)準上限執(zhi)行。
目前我(wo)國水泥(ni)生(sheng)產線(xian)氮(dan)氧化(hua)物減(jian)排(pai)路(lu)線(xian)實(shi)(shi)施(shi)的(de)都是低氮(dan)燃燒+SNCR脫硝(xiao)技(ji)(ji)術(shu),氮(dan)氧化(hua)物減(jian)排(pai)實(shi)(shi)際(ji)運行(xing)效果不穩定,而采用(yong)(yong)SNCR脫硝(xiao)絕對不可能實(shi)(shi)現(xian)超(chao)低排(pai)放(fang)。二(er)氧化(hua)硫減(jian)排(pai)是近幾年才開始實(shi)(shi)施(shi)的(de),有(you)干法(fa)和濕法(fa)多種實(shi)(shi)施(shi)路(lu)線(xian)。水泥(ni)生(sheng)產有(you)害物減(jian)排(pai)技(ji)(ji)術(shu)一直存在路(lu)線(xian)之爭,也有(you)多種技(ji)(ji)術(shu)路(lu)線(xian)實(shi)(shi)驗和應用(yong)(yong),但都沒有(you)形成共(gong)識(shi),不像電(dian)力(li)行(xing)業超(chao)低排(pai)放(fang)減(jian)排(pai)路(lu)線(xian)已經(jing)標準化(hua)。按照國家青山綠水的(de)生(sheng)態文明發展理念(nian),我(wo)們應該按照更(geng)高的(de)水泥(ni)超(chao)凈(jing)排(pai)放(fang)限(xian)值(zhi)要(yao)求,研(yan)究和實(shi)(shi)施(shi)我(wo)們的(de)水泥(ni)環保技(ji)(ji)術(shu)。對于含重金屬(shu)、氟化(hua)物及水泥(ni)協(xie)同處置危廢、污泥(ni)、垃圾等工藝的(de)有(you)機(ji)物、二(er)惡英(ying)等本文不加討(tao)論,只對水泥(ni)前三項(xiang)主要(yao)污染物的(de)“超(chao)低排(pai)放(fang)”值(zhi)提出(chu)討(tao)論指標。
水(shui)(shui)泥(ni)生產(chan)工藝(yi)復雜(za),廢氣(qi)氣(qi)體成分、性質(zhi)也(ye)(ye)比(bi)燃煤(mei)鍋(guo)爐復雜(za),進(jin)一步降低(di)(di)水(shui)(shui)泥(ni)窯廢氣(qi)主(zhu)要(yao)排放限值(zhi)(zhi)(zhi)比(bi)燃煤(mei)鍋(guo)爐要(yao)復雜(za)。表2提出(chu)了(le)水(shui)(shui)泥(ni)窯超低(di)(di)排放的討論值(zhi)(zhi)(zhi)和(he)目標值(zhi)(zhi)(zhi)兩組(zu)數字。水(shui)(shui)泥(ni)工藝(yi)與電力工藝(yi)不(bu)同(tong),環保(bao)技術路線不(bu)同(tong),所能達到的結果也(ye)(ye)不(bu)同(tong),基(ji)于此進(jin)行分析(xi),較合(he)理的水(shui)(shui)泥(ni)超低(di)(di)排放限值(zhi)(zhi)(zhi)應定在“討論值(zhi)(zhi)(zhi)”。但我們努力的方向必須(xu)是(shi)實現(xian)“目標值(zhi)(zhi)(zhi)”。
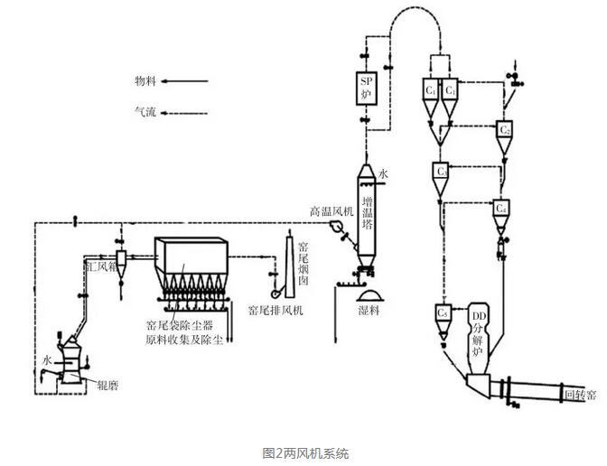
2現有干法(fa)水(shui)泥熟料生產線窯尾系統(tong)典(dian)型(xing)工藝簡介(jie)
現有(you)干法(fa)水(shui)泥熟料生產(chan)線窯尾系(xi)統工(gong)(gong)藝(yi)主要有(you)兩種,即三風機(ji)系(xi)統和兩風機(ji)系(xi)統。圖1為輥磨系(xi)統組成的窯尾三風機(ji)系(xi)統典(dian)型工(gong)(gong)藝(yi),圖2為兩風機(ji)系(xi)統工(gong)(gong)藝(yi)。
三(san)風(feng)機(ji)系統,即窯(yao)尾高溫風(feng)機(ji)+窯(yao)尾廢氣風(feng)機(ji)+生(sheng)(sheng)料(liao)磨(mo)(mo)(mo)(mo)系統循環風(feng)機(ji)。雖(sui)然生(sheng)(sheng)料(liao)磨(mo)(mo)(mo)(mo)系統有多種配置方(fang)案,如球磨(mo)(mo)(mo)(mo)、輥(gun)磨(mo)(mo)(mo)(mo)、輥(gun)壓(ya)(ya)機(ji)+球磨(mo)(mo)(mo)(mo)、輥(gun)壓(ya)(ya)機(ji)+球磨(mo)(mo)(mo)(mo)及輥(gun)壓(ya)(ya)機(ji)終粉磨(mo)(mo)(mo)(mo)系統等,但對于窯(yao)尾風(feng)機(ji)配置基本一樣。三(san)風(feng)機(ji)分(fen)工明(ming)確,系統負(fu)壓(ya)(ya)平(ping)衡較(jiao)好,各設備(bei)承受(shou)負(fu)壓(ya)(ya)較(jiao)低,易(yi)于操作,因此這種系統實際應用很多。
兩(liang)風(feng)機(ji)(ji)系(xi)統是三風(feng)機(ji)(ji)系(xi)統的簡(jian)化(hua),生(sheng)料磨采用輥磨時非常合適,它簡(jian)化(hua)了(le)工藝(yi),設備(bei)布局緊湊,投資低。但(dan)(dan)三風(feng)機(ji)(ji)變為(wei)(wei)兩(liang)風(feng)機(ji)(ji)系(xi)統后,系(xi)統設備(bei)負壓(ya)明(ming)顯(xian)提高,系(xi)統對設備(bei)漏風(feng)更為(wei)(wei)敏感,需(xu)要(yao)更嚴(yan)格管理。兩(liang)風(feng)機(ji)(ji)系(xi)統實(shi)際(ji)應(ying)用偏(pian)少(shao),但(dan)(dan)在(zai)我國以(yi)海螺集團(tuan)為(wei)(wei)代表(biao)的水(shui)泥生(sheng)產線上卻有大(da)量應(ying)用。實(shi)踐(jian)表(biao)明(ming),生(sheng)產管理得好時,兩(liang)風(feng)機(ji)(ji)系(xi)統會比三風(feng)機(ji)(ji)系(xi)統節(jie)能。


需要說明的(de)(de)是(shi)(shi),我國上世紀80年(nian)代至2000年(nian)初(chu)新建的(de)(de)水泥(ni)生(sheng)產線大多(duo)沒(mei)有(you)余熱發電(dian)系統,后來(lai)改造(zao)增加余熱鍋(guo)爐(lu)(lu)的(de)(de)生(sheng)產線很(hen)多(duo),且當(dang)(dang)時(shi)窯尾廢(fei)氣(qi)除(chu)塵(chen)(chen)幾乎全(quan)是(shi)(shi)電(dian)除(chu)塵(chen)(chen)器,這(zhe)些鍋(guo)爐(lu)(lu)更多(duo)的(de)(de)是(shi)(shi)與增濕(shi)塔串聯(lian),也有(you)受工(gong)藝布局限(xian)制采用了塔爐(lu)(lu)并聯(lian)。如(ru)果(guo)當(dang)(dang)初(chu)采用了袋除(chu)塵(chen)(chen)器或改為(wei)了袋除(chu)塵(chen)(chen)器,完全(quan)可以采用塔爐(lu)(lu)并聯(lian)工(gong)藝布局,當(dang)(dang)然就不符合以上所謂典型工(gong)藝系統。
我們介(jie)紹和(he)分(fen)析目前水泥(ni)窯(yao)尾工(gong)藝系統,主(zhu)要目的(de)是為后續探(tan)討不同(tong)工(gong)藝系統超(chao)低排(pai)放的(de)最(zui)佳(jia)技術路(lu)線,因(yin)為大多(duo)數(shu)水泥(ni)超(chao)低排(pai)放工(gong)程是對現有水泥(ni)工(gong)藝的(de)改造。
3實(shi)現水泥生(sheng)產廢(fei)氣超低排放三項指(zhi)標的技術探討及實(shi)踐
3.1粉塵超(chao)低排放技術與實踐(jian)
粉(fen)塵(chen)(chen)(chen)治理在(zai)(zai)水(shui)泥工業(ye)領域一直(zhi)是(shi)最受重視的(de)(de)(de),也(ye)是(shi)在(zai)(zai)所有(you)工業(ye)廢(fei)氣治理中做得較好的(de)(de)(de),但目前超(chao)低(di)排放(fang)實施效果也(ye)不盡如人意。高性(xing)能除塵(chen)(chen)(chen)器的(de)(de)(de)研究是(shi)實現粉(fen)塵(chen)(chen)(chen)超(chao)低(di)排放(fang)的(de)(de)(de)關鍵,而評價除塵(chen)(chen)(chen)器性(xing)能先進性(xing)的(de)(de)(de)指標主要有(you)四項(xiang):更高的(de)(de)(de)除塵(chen)(chen)(chen)效率、更低(di)的(de)(de)(de)設備阻力、更可靠穩定的(de)(de)(de)設備性(xing)能和(he)更低(di)廉的(de)(de)(de)運(yun)行(xing)維護成本。因此,如何降低(di)水(shui)泥廢(fei)氣粉(fen)塵(chen)(chen)(chen)排放(fang),我們主要進行(xing)了如下(xia)工作:
(1)確定高效除塵裝(zhuang)備(bei)技術路線
水(shui)泥窯尾廢氣處理系(xi)統都是(shi)按含生料磨烘干聯合(he)操作廢氣考慮的(de)(de),特點是(shi)工(gong)(gong)況參數常變(bian),以(yi)典型的(de)(de)五級預熱器系(xi)統主(zhu)設備串(chuan)聯工(gong)(gong)藝為例,即圖1、2示意的(de)(de)工(gong)(gong)藝,至(zhi)少(shao)可以(yi)產生如表3的(de)(de)工(gong)(gong)況參數。

可見諸多工(gong)況參數變(bian)化(hua)情(qing)況下,要實現超低排放,對同一臺除塵(chen)器必(bi)須考慮最(zui)惡劣的(de)工(gong)況去(qu)計算定型和結構設(she)計。
電除塵(chen)(chen)(chen)器(qi)(qi)和袋除塵(chen)(chen)(chen)器(qi)(qi)都可達到粉(fen)塵(chen)(chen)(chen)的(de)超低(di)排放的(de)限(xian)值。但從除塵(chen)(chen)(chen)機理去分析,電除塵(chen)(chen)(chen)器(qi)(qi)是(shi)靠靜電吸附(fu)的(de)機理除塵(chen)(chen)(chen)的(de),必須(xu)先給粉(fen)塵(chen)(chen)(chen)顆粒荷(he)電,荷(he)電效果不僅(jin)與電場電源設(she)備相(xiang)(xiang)關,更(geng)與氣(qi)(qi)體的(de)溫(wen)(wen)度、露點溫(wen)(wen)度、粉(fen)塵(chen)(chen)(chen)量相(xiang)(xiang)關,且(qie)是(shi)非(fei)線(xian)性相(xiang)(xiang)關,對(dui)溫(wen)(wen)度和露點溫(wen)(wen)度特別敏(min)感。試(shi)驗和工程(cheng)實踐都證(zheng)明,窯尾廢氣(qi)(qi)的(de)露點溫(wen)(wen)度在(zai)(zai)30℃左右時,塵(chen)(chen)(chen)粒幾(ji)乎無法(fa)荷(he)電,電除塵(chen)(chen)(chen)效率(lv)(lv)極(ji)低(di),是(shi)增濕塔不能(neng)投(tou)運(yun)的(de)事(shi)故(gu)(gu)狀態,達標排放幾(ji)乎無法(fa)實現,其他事(shi)故(gu)(gu)狀態,如極(ji)線(xian)斷、極(ji)板變形都會造成除塵(chen)(chen)(chen)效率(lv)(lv)下降。若要(yao)避免此類事(shi)故(gu)(gu),我(wo)們就要(yao)加大成本投(tou)入,考(kao)慮足夠大的(de)備用系(xi)數來達到可靠的(de)性能(neng),這就迫使我(wo)們在(zai)(zai)粉(fen)塵(chen)(chen)(chen)超低(di)排放技術路線(xian)研究中不得(de)不放棄終端除塵(chen)(chen)(chen)設(she)備采(cai)用電除塵(chen)(chen)(chen)器(qi)(qi)。
袋式(shi)除塵(chen)(chen)(chen)(chen)(chen)器(qi)是(shi)治(zhi)理大氣(qi)粉(fen)塵(chen)(chen)(chen)(chen)(chen)污染的(de)(de)高(gao)效(xiao)除塵(chen)(chen)(chen)(chen)(chen)設備,最大優點(dian)是(shi)除塵(chen)(chen)(chen)(chen)(chen)效(xiao)率(lv)高(gao),過(guo)濾(lv)效(xiao)率(lv)與氣(qi)體溫度(du)、露點(dian)溫度(du)在(zai)較寬的(de)(de)適(shi)應(ying)范圍(wei)內幾乎無關,與入口粉(fen)塵(chen)(chen)(chen)(chen)(chen)含量正相關,即粉(fen)塵(chen)(chen)(chen)(chen)(chen)含量越高(gao)除塵(chen)(chen)(chen)(chen)(chen)效(xiao)率(lv)越高(gao),出口排放(fang)基本恒定。不斷出現的(de)(de)高(gao)性能(neng)(neng)過(guo)濾(lv)材料,使其(qi)粉(fen)塵(chen)(chen)(chen)(chen)(chen)過(guo)濾(lv)效(xiao)率(lv)在(zai)實(shi)驗(yan)室高(gao)達(da)99.9999%,對氣(qi)體成分、溫度(du)、露點(dian)溫度(du)的(de)(de)適(shi)應(ying)范圍(wei)越來越廣,在(zai)實(shi)際應(ying)用中也(ye)能(neng)(neng)達(da)到99.99%。現在(zai)的(de)(de)濾(lv)袋及除塵(chen)(chen)(chen)(chen)(chen)器(qi)結構(gou)技術完(wan)全可以(yi)做到粉(fen)塵(chen)(chen)(chen)(chen)(chen)排放(fang)濃度(du)≤10mg/m3,甚至達(da)到2mg/m3,這是(shi)袋式(shi)除塵(chen)(chen)(chen)(chen)(chen)器(qi)的(de)(de)過(guo)濾(lv)機(ji)理所決定的(de)(de)。
因此,我們確(que)定了(le)研發先進袋除塵器實現粉塵超(chao)低排放的(de)技(ji)術方向。近10年來,在除塵清灰高效(xiao)、過濾低阻、性能可靠方面我們做了(le)大量的(de)研究工作,也付(fu)諸了(le)大量實踐,很(hen)多案例成果達到了(le)粉塵的(de)超(chao)低排放要求。
(2)袋除塵(chen)器結構性能(neng)研究
多年來,我(wo)們一直致力于(yu)大(da)型袋(dai)除(chu)(chu)塵(chen)器裝(zhuang)備(bei)的(de)(de)開發研制(zhi),并(bing)取得(de)了(le)顯(xian)著的(de)(de)成果。早期(qi),我(wo)們基于(yu)引(yin)進的(de)(de)富樂公司技(ji)術,開發了(le)氣箱脈沖(chong)清(qing)灰系列(lie)袋(dai)除(chu)(chu)塵(chen)器和分室(shi)風機(ji)反吹清(qing)灰系列(lie)袋(dai)除(chu)(chu)塵(chen)器,并(bing)在水泥(ni)廠各排塵(chen)點成功(gong)應(ying)用(yong)。1998年,在北京水泥(ni)廠應(ying)用(yong)的(de)(de)窯尾大(da)型高溫反吹清(qing)灰袋(dai)除(chu)(chu)塵(chen)器獲得(de)了(le)國家科(ke)技(ji)進步獎。但(dan)這(zhe)種除(chu)(chu)塵(chen)器受(shou)結(jie)構和清(qing)灰方(fang)式所限,其(qi)過濾風速(su)不(bu)能(neng)太高,造(zao)成設備(bei)體積相(xiang)對(dui)龐(pang)大(da),投資很高,對(dui)于(yu)大(da)規模(>4000t/d)水泥(ni)熟(shu)料(liao)生產線尤其(qi)如此。而氣箱脈沖(chong)袋(dai)除(chu)(chu)塵(chen)器雖然過濾風速(su)可以提高,但(dan)不(bu)能(neng)實(shi)現長袋(dai)清(qing)灰,因此不(bu)適合大(da)風量高溫廢氣的(de)(de)處(chu)理。
2001年,我們開始研究行噴脈(mo)(mo)沖(chong)清灰(hui)長(chang)(chang)(chang)(chang)袋(dai)袋(dai)收(shou)塵(chen)器(qi)。除(chu)塵(chen)器(qi)的(de)新結構采用自引流脈(mo)(mo)沖(chong)噴吹裝置(zhi)(非(fei)文氏管)(圖3)和長(chang)(chang)(chang)(chang)袋(dai)分排清灰(hui),將袋(dai)長(chang)(chang)(chang)(chang)由3m加長(chang)(chang)(chang)(chang)到6m以上,基本(ben)解決了(le)袋(dai)長(chang)(chang)(chang)(chang)限(xian)制。
2003年首次成功用(yong)于水泥(ni)生產線(xian)窯尾,此項技術獲得(de)2005年天津市及(ji)國家建材聯合會科技進步二等獎,而后推(tui)廣應用(yong)到了幾乎所(suo)有新型(xing)干法水泥(ni)生產線(xian)。
2005年,結合(he)琉璃河水(shui)泥(ni)廠(chang)窯尾(wei)電除(chu)塵器改造,我們(men)開(kai)始推出凈氣室室內換袋結構的袋除(chu)塵器(圖4),大大降(jiang)低了整機漏(lou)風率。
天(tian)瑞(rui)大(da)(da)連(lian)水(shui)泥廠有規(gui)模相同的(de)兩條5000t/d水(shui)泥生產線(xian),建設(she)中分(fen)別采(cai)用兩臺不(bu)同換(huan)袋(dai)(dai)(dai)(dai)形式(shi)的(de)窯尾袋(dai)(dai)(dai)(dai)除塵(chen)器(qi)。投入運(yun)行約(yue)一年后(hou),從除塵(chen)效果(guo)(主(zhu)要是(shi)(shi)破袋(dai)(dai)(dai)(dai)率(lv)不(bu)同引(yin)起)、運(yun)行阻力等(deng)方面,都顯示出(chu)內(nei)換(huan)袋(dai)(dai)(dai)(dai)型(xing)除塵(chen)器(qi)優于頂換(huan)袋(dai)(dai)(dai)(dai)型(xing)。我(wo)們特別測試對比了除塵(chen)器(qi)本(ben)體實際漏風(feng)(feng)率(lv):普通結(jie)構的(de)頂部換(huan)袋(dai)(dai)(dai)(dai)形式(shi)袋(dai)(dai)(dai)(dai)除塵(chen)器(qi)漏風(feng)(feng)率(lv)達12%,而室內(nei)換(huan)袋(dai)(dai)(dai)(dai)結(jie)構的(de)袋(dai)(dai)(dai)(dai)除塵(chen)器(qi)漏風(feng)(feng)率(lv)只有2.3%。當然(ran)除塵(chen)器(qi)的(de)漏風(feng)(feng)率(lv)高可能是(shi)(shi)因為檢修(xiu)維護時人(ren)孔門未(wei)完全(quan)復位造成,致使(shi)窯尾廢氣風(feng)(feng)機電能消耗巨大(da)(da)。
還有就是除塵器(qi)漏風帶來的廢(fei)氣(qi)降溫,足以(yi)造成(cheng)大(da)面積本體結(jie)露和早期腐蝕。因此(ci),我(wo)們對大(da)型(xing)高溫或高負(fu)壓袋(dai)除塵器(qi)定型(xing)結(jie)構全部采用室內換袋(dai),該結(jie)構每一個(ge)室只有一個(ge)面積比較(jiao)小的側面人(ren)孔門,而且是雙層(ceng)門。


2007年,針對(dui)我們(men)的(de)非袋(dai)內文氏管(guan)或保護管(guan)噴吹(chui)結構(gou),我們(men)又將傳(chuan)統的(de)圓形噴吹(chui)管(guan)(圖(tu)(tu)5)改進為方形管(guan)(圖(tu)(tu)6),這就簡化了(le)(le)噴嘴(zui)接口處理,提高(gao)了(le)(le)噴嘴(zui)定位(wei)精度和(he)與噴管(guan)中心線垂(chui)直(zhi)(zhi)度公(gong)(gong)差的(de)精度。圖(tu)(tu)6的(de)噴嘴(zui)明顯比圖(tu)(tu)5噴嘴(zui)的(de)定位(wei)公(gong)(gong)差和(he)垂(chui)直(zhi)(zhi)度公(gong)(gong)差更(geng)易控制(zhi),因此(ci)(ci)更(geng)適合專業加工(gong)工(gong)具的(de)應用和(he)提高(gao)產品加工(gong)效率。更(geng)重(zhong)要(yao)的(de)是,自此(ci)(ci)變更(geng)后再沒有出現噴嘴(zui)偏差造成的(de)破袋(dai)案例。

(3)實現優秀(xiu)袋除塵器開發(fa)設計的現代化設計手段
袋除塵(chen)(chen)(chen)器(qi)結構(gou)尺(chi)寸離散性(xing)很強,同規(gui)(gui)模生產(chan)線、同一(yi)(yi)應用(yong)(yong)點的袋除塵(chen)(chen)(chen)器(qi)都不(bu)(bu)盡相同,遠不(bu)(bu)及(ji)電(dian)除塵(chen)(chen)(chen)器(qi)規(gui)(gui)范(fan)化(hua)程度高。主(zhu)要(yao)是(shi)(shi)缺乏(fa)統一(yi)(yi)技術標(biao)準,或說(shuo)標(biao)準缺乏(fa)約束力(li),應用(yong)(yong)中產(chan)生多種結構(gou)系列產(chan)品,同一(yi)(yi)除塵(chen)(chen)(chen)器(qi)設計(ji)(ji)(ji)制造企(qi)業也需適應不(bu)(bu)同用(yong)(yong)戶(hu)和(he)不(bu)(bu)同環(huan)境的要(yao)求,隨時(shi)變更結構(gou)設計(ji)(ji)(ji)。另(ling)外,國家(jia)環(huan)保(bao)標(biao)準不(bu)(bu)斷提高,除塵(chen)(chen)(chen)器(qi)更新(xin)改造工(gong)作很多,結構(gou)設計(ji)(ji)(ji)更是(shi)(shi)千(qian)差萬別,從某(mou)種意義(yi)上(shang)說(shuo)袋除塵(chen)(chen)(chen)器(qi)屬于“非標(biao)”設計(ji)(ji)(ji),這(zhe)就(jiu)造成了工(gong)作量(liang)巨大和(he)除塵(chen)(chen)(chen)器(qi)實(shi)際應用(yong)(yong)性(xing)能的參(can)差不(bu)(bu)齊。實(shi)現袋除塵(chen)(chen)(chen)器(qi)產(chan)品質量(liang)高、性(xing)能穩定和(he)設計(ji)(ji)(ji)效率(lv)高,一(yi)(yi)定需要(yao)現代(dai)化(hua)的設計(ji)(ji)(ji)手段。
2008年(nian)初,我們開始了(le)“袋(dai)(dai)(dai)式(shi)(shi)(shi)除(chu)塵(chen)器(qi)(qi)(qi)(qi)數(shu)字(zi)化(hua)設(she)計與綜(zong)(zong)合(he)(he)研發(fa)平臺”的研發(fa)工作,歷時10年(nian),針對袋(dai)(dai)(dai)除(chu)塵(chen)器(qi)(qi)(qi)(qi)產品(pin)(pin)創新研發(fa)的全過(guo)程,包(bao)括(kuo)結(jie)構、流(liu)場、過(guo)濾(lv)、清灰過(guo)程,以(yi)數(shu)字(zi)化(hua)設(she)計技(ji)術為基礎,創新研發(fa)手段,準確高效解(jie)決(jue)實際應用(yong)問(wen)題(ti),不(bu)斷提(ti)升(sheng)袋(dai)(dai)(dai)除(chu)塵(chen)器(qi)(qi)(qi)(qi)產品(pin)(pin)綜(zong)(zong)合(he)(he)性能(neng)指(zhi)標,構建(jian)了(le)袋(dai)(dai)(dai)式(shi)(shi)(shi)除(chu)塵(chen)器(qi)(qi)(qi)(qi)產品(pin)(pin)研發(fa)數(shu)據庫,分(fen)別(bie)開發(fa)了(le)“袋(dai)(dai)(dai)式(shi)(shi)(shi)除(chu)塵(chen)器(qi)(qi)(qi)(qi)流(liu)場技(ji)術仿真分(fen)析優化(hua)系統”、“袋(dai)(dai)(dai)式(shi)(shi)(shi)除(chu)塵(chen)器(qi)(qi)(qi)(qi)結(jie)構優化(hua)設(she)計系統”,建(jian)成了(le)“袋(dai)(dai)(dai)式(shi)(shi)(shi)除(chu)塵(chen)器(qi)(qi)(qi)(qi)綜(zong)(zong)合(he)(he)測試平臺”、“袋(dai)(dai)(dai)式(shi)(shi)(shi)除(chu)塵(chen)器(qi)(qi)(qi)(qi)綜(zong)(zong)合(he)(he)驗證平臺”和袋(dai)(dai)(dai)式(shi)(shi)(shi)除(chu)塵(chen)器(qi)(qi)(qi)(qi)性能(neng)綜(zong)(zong)合(he)(he)實驗基地(圖7、8)。


研(yan)發(fa)平臺(tai)解決(jue)了(le)(le)袋(dai)式除塵器產(chan)品創(chuang)新的(de)(de)(de)行業共性關鍵技(ji)(ji)術,包括:基于國際(ji)先進(jin)的(de)(de)(de)TRIZ的(de)(de)(de)集成創(chuang)新技(ji)(ji)術、多場仿(fang)真(zhen)技(ji)(ji)術、產(chan)品快捷和(he)定制(zhi)優化技(ji)(ji)術、數(shu)字化樣機(ji)模型及重構技(ji)(ji)術、數(shu)字化仿(fang)真(zhen)測試(shi)評價技(ji)(ji)術及組態化實(shi)(shi)驗(yan)(yan)驗(yan)(yan)證技(ji)(ji)術等,可實(shi)(shi)現開發(fa)袋(dai)式除塵器新產(chan)品變結構、新工藝、新型濾材(cai)等的(de)(de)(de)綜合測試(shi)實(shi)(shi)驗(yan)(yan)。利用(yong)平臺(tai),我們(men)已經完成了(le)(le)不(bu)同(tong)基型的(de)(de)(de)袋(dai)式除塵器分(fen)風、過濾及清灰等性能的(de)(de)(de)數(shu)值模擬(ni)計算、數(shu)據分(fen)析、仿(fang)真(zhen)測試(shi)及實(shi)(shi)驗(yan)(yan)驗(yan)(yan)證,獲取了(le)(le)復雜(za)需求前端(duan)對應的(de)(de)(de)數(shu)據規律。

實際上,該綜(zong)合平臺(tai)是我(wo)們(men)在生產過(guo)程中分段研發(fa)的(de)(de)。首先(xian)通過(guo)數字流場計算的(de)(de)模擬,確(que)定了公(gong)司標準袋除塵器(qi)系列及多(duo)種非(fei)標改造的(de)(de)低阻結構(圖9、10)。
項(xiang)目技術(shu)(shu)成果(guo)應(ying)用(yong)在(zai)公司袋除塵器設計(ji)的四大產品系列和幾百臺“電(dian)改袋”除塵器改造,大大縮短了產品設計(ji)周期(qi),有(you)效提升了袋除塵器的各項(xiang)技術(shu)(shu)指標(biao)和工作(zuo)可靠性,穩定達到低排放效果(guo),設備平均運行阻力降(jiang)低,節能環保效果(guo)明顯(xian)。圖(tu)11為幾個典(dian)型(xing)應(ying)用(yong)案(an)例。

從檢測和監(jian)測結果可見(jian),粉塵排(pai)放基(ji)本可以實現“超低排(pai)放”。
研發平臺應用于產品設(she)計(ji)的(de)同時,還應用于生(sheng)產,快速解決了(le)(le)很(hen)多(duo)除(chu)(chu)塵器及(ji)系統的(de)實際問(wen)題。袋除(chu)(chu)塵器運(yun)行(xing)早期(qi)出現破(po)袋問(wen)題。破(po)袋原因很(hen)多(duo)很(hen)復(fu)雜,有結(jie)構設(she)計(ji)不合理(li)問(wen)題,也(ye)有除(chu)(chu)塵器前(qian)后工(gong)藝(yi)接入的(de)進出風管路不合理(li)問(wen)題。利用該平臺,我(wo)(wo)們(men)(men)(men)解決了(le)(le)許多(duo)早期(qi)破(po)袋問(wen)題。例如,2009年(nian)金隅(yu)集團收購贊皇水泥一條(tiao)未建設(she)完成的(de)2500t/d水泥生(sheng)產線后,直(zhi)接委托我(wo)(wo)們(men)(men)(men)將(jiang)窯尾(wei)電除(chu)(chu)塵器改(gai)為(wei)袋除(chu)(chu)塵器,我(wo)(wo)們(men)(men)(men)按(an)常規(gui)在(zai)(zai)短期(qi)內(nei)進行(xing)了(le)(le)改(gai)造。生(sheng)產線剛開始投入運(yun)行(xing)時效(xiao)果(guo)良好,但約3個月(yue)后出現排(pai)放(fang)超標(biao)。我(wo)(wo)們(men)(men)(men)檢查發現,有3條(tiao)破(po)袋產生(sheng),且集中在(zai)(zai)后部(bu)一個室(shi)內(nei),我(wo)(wo)們(men)(men)(men)僅進行(xing)了(le)(le)封堵處理(li)。
又(you)(you)運(yun)(yun)行(xing)1個(ge)月(yue)左右,出(chu)現了(le)更嚴(yan)重(zhong)(zhong)的排放超標(biao),濃煙滾滾。我們再(zai)進行(xing)檢查發現,又(you)(you)有(you)十幾條濾袋破損(sun),而(er)且(qie)跟上次(ci)是同(tong)一個(ge)室,這次(ci)引起了(le)我們的重(zhong)(zhong)視,尋找(zhao)各種設計結構、產品質量問題,業主甚至直接請來知名專家,但(dan)都沒有(you)找(zhao)到實(shi)質問題。我們再(zai)次(ci)簡單處理后繼(ji)續生(sheng)產,隨著運(yun)(yun)行(xing)時間的延長,問題沒有(you)減(jian)輕的征兆(zhao),而(er)且(qie)越來越嚴(yan)重(zhong)(zhong),不得不停窯(yao)。
停窯后我(wo)(wo)們再檢查(cha)發(fa)(fa)現(xian),破(po)袋(dai)有50條以上(shang),已經(jing)不止一(yi)個室(shi)(shi),同側臨近的(de)室(shi)(shi)也有破(po)袋(dai),破(po)損嚴重(zhong)的(de)已經(jing)在離袋(dai)口(kou)(kou)100mm左右,出現(xian)環向(xiang)1/2左右的(de)橫斷(duan)口(kou)(kou)(圖(tu)12)。操(cao)作(zuo)員(yuan)打(da)開廢氣風(feng)機后,我(wo)(wo)們在凈氣室(shi)(shi)內觀察,竟發(fa)(fa)現(xian)有些袋(dai)籠晃動很大(da),甚至(zhi)懸(xuan)浮起(qi)來(lai)有10°左右的(de)來(lai)回(hui)轉動,據此(ci)判(pan)定是分(fen)風(feng)不均(jun),此(ci)袋(dai)室(shi)(shi)斷(duan)面風(feng)速極(ji)高。分(fen)風(feng)不均(jun)應該(gai)與入(ru)(ru)風(feng)口(kou)(kou)偏(pian)于除(chu)塵器縱軸線約45°角(圖(tu)13)有關。為(wei)證(zheng)實此(ci)判(pan)斷(duan),我(wo)(wo)們啟用了正在研發(fa)(fa)的(de)數字流場模(mo)擬系統,對(dui)包括入(ru)(ru)口(kou)(kou)風(feng)管(guan)在內的(de)除(chu)塵系統進行實測(ce)設計(ji)3D建(jian)模(mo),將(jiang)風(feng)量(liang)等參數導入(ru)(ru)計(ji)算模(mo)型后發(fa)(fa)現(xian),由于該(gai)系統是由非(fei)正規設計(ji)院(yuan)設計(ji),入(ru)(ru)口(kou)(kou)風(feng)管(guan)直徑只有?22000mm,風(feng)以36m/s的(de)高速斜向(xiang)沖入(ru)(ru)除(chu)塵器,造成了除(chu)塵器后段單側袋(dai)室(shi)(shi)風(feng)速過高(見圖(tu)14),與實際出現(xian)破(po)袋(dai)的(de)位置吻合。

我(wo)們通過數字流(liu)場(chang)模擬系統模擬產生(sheng)了最優的解決辦法,即加(jia)粗(cu)進(jin)風管直徑到(dao)?28000mm,增加(jia)入口導流(liu)板。方案(an)實施后,系統工作(zuo)正常(chang),再沒有(you)出現(xian)破袋現(xian)象。
我們(men)利用該數字(zi)技術平(ping)(ping)(ping)臺(tai)處理(li)了(le)很多類似案(an)例(li),均取得了(le)滿意的效果。2017年該綜合數字(zi)技術平(ping)(ping)(ping)臺(tai)通過建材聯合會(hui)組織的科技成果鑒定,結論(lun)為:項目成果整體達到國際先進水平(ping)(ping)(ping)。

3.2氮(dan)氧化物超低排(pai)放技(ji)術探討(tao)
GB4915-2013《水泥(ni)工業大氣污染物排(pai)放(fang)標準》要求現(xian)有和(he)新建水泥(ni)企業的(de)(de)NOx排(pai)放(fang)限值由原來的(de)(de)800mg/m3(標)(NO2@10%O2,以(yi)下(xia)同)降到400mg/m3(標)(重(zhong)點地區(qu)NOx排(pai)放(fang)限值為320mg/m3(標))。因此我國幾(ji)乎100%的(de)(de)水泥(ni)生產線都(dou)實施了低(di)氮(dan)氧化物排(pai)放(fang)技(ji)術(shu)(shu)(shu),包括低(di)氮(dan)氧化物燃燒(shao)技(ji)術(shu)(shu)(shu)和(he)廢氣SNCR脫硝技(ji)術(shu)(shu)(shu),或單一SNCR脫硝技(ji)術(shu)(shu)(shu),基本可以(yi)實現(xian)目前(qian)國家的(de)(de)排(pai)放(fang)標準。但SNCR脫硝需要滿(man)足反應溫度的(de)(de)要求,溫度太(tai)(tai)高或太(tai)(tai)低(di)都(dou)會影響(xiang)氨(an)和(he)NOx的(de)(de)反應,對噴(pen)氨(an)控(kong)制(zhi)的(de)(de)要求很高,實際(ji)運(yun)行中都(dou)會有噴(pen)氨(an)過量(liang)問(wen)題(ti)存在,致使(shi)能耗高、運(yun)行成本高,氨(an)逃逸過量(liang)造成二次(ci)污染,最重(zhong)要的(de)(de)問(wen)題(ti)是,它的(de)(de)脫硝效率一般(ban)為30%~60%,且不易穩定。
要想進一步(bu)提高(gao)(gao)脫(tuo)(tuo)硝效率(lv),降低(di)(di)排放(fang)限值,靠目(mu)前實施(shi)的技術(shu)(shu)難以(yi)實現,而SCR脫(tuo)(tuo)硝效率(lv)可(ke)達(da)到(dao)90%以(yi)上(shang),實現水泥(ni)窯廢氣氮氧(yang)化物(wu)超低(di)(di)排放(fang)最(zui)可(ke)行(xing)的措施(shi)是采用SCR技術(shu)(shu),因此(ci)國內(nei)外都在(zai)探討和(he)實驗應(ying)用水泥(ni)SCR脫(tuo)(tuo)硝技術(shu)(shu)。國外有一些水泥(ni)生產(chan)線(xian)SCR運(yun)行(xing)案(an)例,但未見(jian)其長期(qi)穩定運(yun)行(xing)且(qie)各項指標滿意(yi)、完全可(ke)推廣的技術(shu)(shu)案(an)例報(bao)導,其主(zhu)要原(yuan)因是,水泥(ni)生產(chan)工藝的高(gao)(gao)效脫(tuo)(tuo)硝技術(shu)(shu)路線(xian)尚達(da)不到(dao)煤電(dian)鍋(guo)爐脫(tuo)(tuo)硝技術(shu)(shu)的成熟度和(he)可(ke)靠度。
目前水泥生產工藝(yi)(yi)與催化(hua)(hua)(hua)劑(ji)使用(yong)溫(wen)度(du)不(bu)適應問(wen)題突出(chu),需要(yao)針對水泥生產工藝(yi)(yi)的(de)(de)特點,探索解決問(wen)題的(de)(de)新技術(shu)。下面提(ti)出(chu)我(wo)們的(de)(de)意見:目前SCR脫(tuo)硝(xiao)(xiao)(xiao)工藝(yi)(yi)方(fang)案(an)一(yi)般分為高塵(chen)(chen)(chen)(HighDust)布(bu)(bu)置(zhi)(zhi)方(fang)案(an)、半塵(chen)(chen)(chen)(Semi-Dust)布(bu)(bu)置(zhi)(zhi)方(fang)案(an)和低塵(chen)(chen)(chen)(LowDust)布(bu)(bu)置(zhi)(zhi)方(fang)案(an)。在(zai)煤(mei)電鍋爐系(xi)統(tong)成功實施的(de)(de)SCR脫(tuo)硝(xiao)(xiao)(xiao)工藝(yi)(yi)方(fang)案(an)多為高塵(chen)(chen)(chen)布(bu)(bu)置(zhi)(zhi)方(fang)案(an),一(yi)般是在(zai)空(kong)氣(qi)預熱器前適合的(de)(de)溫(wen)度(du)段(duan)將(jiang)廢氣(qi)引出(chu)進(jin)行(xing)催化(hua)(hua)(hua)脫(tuo)硝(xiao)(xiao)(xiao)。這里的(de)(de)廢氣(qi)含(han)塵(chen)(chen)(chen)量一(yi)般<20g/m3,且燃煤(mei)氣(qi)體成分較簡單(dan)穩定,只要(yao)在(zai)催化(hua)(hua)(hua)反應器中適當布(bu)(bu)置(zhi)(zhi)吹灰裝置(zhi)(zhi),就可完全實現(xian)較長期(qi)的(de)(de)穩定催化(hua)(hua)(hua)脫(tuo)硝(xiao)(xiao)(xiao)作用(yong)。目前燃煤(mei)鍋爐在(zai)350℃左右應用(yong)釩(fan)鈦體系(xi)催化(hua)(hua)(hua)劑(ji)的(de)(de)SCR脫(tuo)硝(xiao)(xiao)(xiao)工程技術(shu)是成熟可靠的(de)(de)。
然而(er),水(shui)(shui)泥熟(shu)料生(sheng)產系統窯尾廢(fei)氣(qi)成(cheng)(cheng)分復雜,在廢(fei)氣(qi)余熱(re)利用前,適(shi)合(he)(he)(he)催(cui)化(hua)劑活性的(de)(de)溫度段氣(qi)體含塵濃度一般是(shi)60~80g/m3,不能(neng)直接沿用煤電鍋爐(lu)廢(fei)氣(qi)的(de)(de)SCR脫(tuo)硝(xiao)工(gong)藝。為(wei)探(tan)討適(shi)合(he)(he)(he)水(shui)(shui)泥窯尾廢(fei)氣(qi)的(de)(de)SCR脫(tuo)硝(xiao)技術,國內外都在兩個方向上開展了研究工(gong)作(zuo):其(qi)一是(shi)研發適(shi)合(he)(he)(he)水(shui)(shui)泥熟(shu)料生(sheng)產廢(fei)氣(qi)成(cheng)(cheng)分及現有水(shui)(shui)泥熟(shu)料生(sheng)產工(gong)藝的(de)(de)低溫催(cui)化(hua)劑;其(qi)二就是(shi)調整(zheng)水(shui)(shui)泥熟(shu)料現有生(sheng)產工(gong)藝以適(shi)應現有成(cheng)(cheng)熟(shu)的(de)(de)廢(fei)氣(qi)SCR脫(tuo)硝(xiao)技術。本文(wen)主(zhu)要(yao)針對常溫催(cui)化(hua)劑探(tan)討后者。
如(ru)果水(shui)泥熟料生產(chan)尾(wei)氣的SCR脫硝(xiao)也(ye)按高塵(chen)、半塵(chen)和低(di)塵(chen)方(fang)案來區(qu)分,一般是采用如(ru)下(xia)方(fang)案:
(1)水泥(ni)窯尾(wei)高塵SCR布置工(gong)藝
圖15為高(gao)塵(chen)(chen)SCR布置(zhi)(zhi)工藝(yi),國外(wai)早期有(you)此方案實(shi)施(shi)的(de)報導。它(ta)是將(jiang)催(cui)化(hua)(hua)反應器(qi)(qi)布置(zhi)(zhi)在(zai)預熱器(qi)(qi)C1旋風筒廢氣出口處(chu),此處(chu)的(de)溫(wen)度(du)較(jiao)高(gao)(約350℃),可(ke)(ke)以(yi)滿足常規SCR催(cui)化(hua)(hua)劑反應需(xu)要的(de)溫(wen)度(du)。但是該處(chu)的(de)粉塵(chen)(chen)濃度(du)可(ke)(ke)達60~80g/m3(標),對催(cui)化(hua)(hua)劑的(de)沖刷磨損大,催(cui)化(hua)(hua)劑堵塞的(de)風險也(ye)比(bi)較(jiao)大,所以(yi)對清灰(hui)(吹灰(hui))系統要求很(hen)高(gao)。另外(wai),各種有(you)害(hai)成分引起的(de)催(cui)化(hua)(hua)劑中毒也(ye)會(hui)嚴(yan)重(zhong),甚至(zhi)短(duan)期運行即(ji)失效,因此一(yi)直(zhi)不被業界所接受。

(2)水泥窯(yao)尾半塵SCR布置工藝
圖16為(wei)水泥廠(chang)SCR脫硝的(de)半塵(chen)(chen)布置(zhi)(zhi)或(huo)中塵(chen)(chen)(MiddleDust)布置(zhi)(zhi)工藝,它需(xu)要在(zai)SCR反應(ying)器之前安裝高(gao)(gao)(gao)溫(wen)電除(chu)(chu)塵(chen)(chen)器。因為(wei)高(gao)(gao)(gao)溫(wen)電除(chu)(chu)塵(chen)(chen)器的(de)除(chu)(chu)塵(chen)(chen)效(xiao)率不(bu)(bu)能(neng)達到很(hen)高(gao)(gao)(gao),所以出口(kou)含塵(chen)(chen)量仍(reng)然較高(gao)(gao)(gao),特別是除(chu)(chu)塵(chen)(chen)器電場事故致使(shi)廢氣含塵(chen)(chen)量高(gao)(gao)(gao)不(bu)(bu)可避(bi)免,半塵(chen)(chen)布置(zhi)(zhi)方案也與高(gao)(gao)(gao)塵(chen)(chen)方案存在(zai)同樣(yang)問題。另外,通過高(gao)(gao)(gao)溫(wen)電除(chu)(chu)塵(chen)(chen)器的(de)氣體(ti)溫(wen)度還會有所降低(di),也不(bu)(bu)利于常規催化(hua)劑高(gao)(gao)(gao)效(xiao)運行。國(guo)內外實際應(ying)用的(de)報導都同樣(yang)是不(bu)(bu)能(neng)穩定運行。

(3)水泥窯尾低(di)塵SCR布置工(gong)藝
圖17為(wei)傳統(tong)的(de)低(di)塵(chen)布置工(gong)藝,采(cai)用(yong)傳統(tong)的(de)高溫(wen)(wen)袋(dai)除塵(chen)器可以保證進(jin)入(ru)SCR反(fan)應器的(de)廢氣含塵(chen)量極低(di),這樣粉塵(chen)對SCR催(cui)化劑的(de)影響小。但(dan)由于傳統(tong)濾(lv)袋(dai)的(de)耐溫(wen)(wen)限制(zhi),通(tong)常(chang)需(xu)要采(cai)用(yong)六級(ji)預(yu)熱(re)器,或優先通(tong)過SP余熱(re)鍋(guo)爐降(jiang)溫(wen)(wen),或采(cai)用(yong)增濕塔將(jiang)預(yu)熱(re)器出口(kou)廢氣溫(wen)(wen)度(du)降(jiang)低(di)到≤280℃,并且不允許(xu)出現超溫(wen)(wen)事故。降(jiang)溫(wen)(wen)除塵(chen)后(hou),為(wei)了(le)滿(man)足氮氧(yang)化物(wu)最(zui)佳催(cui)化還(huan)原(yuan)反(fan)應溫(wen)(wen)度(du),需(xu)要對煙氣進(jin)行(xing)再加熱(re),這無(wu)疑會(hui)使工(gong)藝復雜且有能源消耗(hao)。如果研發出有效可靠的(de)低(di)溫(wen)(wen)催(cui)化劑,無(wu)需(xu)對氣體再加熱(re),則是一個理想的(de)選擇。

國外有關(guan)研究實驗結果給出了(le)催(cui)化(hua)劑(ji)活性使用壽(shou)命與氣體(ti)(ti)含(han)塵(chen)(chen)量的(de)關(guan)系(見圖18)。由此可見,氣體(ti)(ti)含(han)塵(chen)(chen)量高會大大縮短水泥SCR脫硝催(cui)化(hua)劑(ji)的(de)使用壽(shou)命,水泥窯(yao)尾的(de)高塵(chen)(chen)布置方(fang)案會更糟(zao)。

(4)水泥窯(yao)尾新型低塵(chen)SCR布置(zhi)工藝
近(jin)年我(wo)國超高溫(wen)(wen)過(guo)濾(lv)(lv)材料(liao)(liao)(liao)的(de)研發(fa)取(qu)得了(le)長(chang)足的(de)進步,金屬(shu)膜過(guo)濾(lv)(lv)材料(liao)(liao)(liao)、金屬(shu)纖維(wei)氈(zhan)過(guo)濾(lv)(lv)材料(liao)(liao)(liao)以(yi)及陶瓷纖維(wei)過(guo)濾(lv)(lv)材料(liao)(liao)(liao)都已開始走向應用(yong)市(shi)場,依據(ju)材料(liao)(liao)(liao)配方(fang)的(de)不(bu)同(tong),它們(men)承(cheng)受的(de)溫(wen)(wen)度(du)可以(yi)達到300~1000℃。天(tian)津水泥(ni)工(gong)業設計研究院有限公司(si)和中(zhong)材裝備集團有限公司(si)環保分公司(si)與相(xiang)關廠家合(he)作分別對以(yi)上超高溫(wen)(wen)過(guo)濾(lv)(lv)材料(liao)(liao)(liao)進行了(le)實驗室測試(shi),過(guo)濾(lv)(lv)精度(du)完全可以(yi)媲美現有常(chang)規纖維(wei)氈(zhan)類(lei)以(yi)及PTFE覆(fu)膜類(lei)各(ge)種濾(lv)(lv)料(liao)(liao)(liao),過(guo)濾(lv)(lv)阻力不(bu)高于常(chang)規濾(lv)(lv)料(liao)(liao)(liao),在較(jiao)高的(de)過(guo)濾(lv)(lv)風速下易(yi)于清灰。我(wo)們(men)提(ti)出的(de)水泥(ni)窯尾SCR新型低塵布置工(gong)藝見圖19。

由我(wo)們實驗室采用超(chao)高溫(wen)濾袋(dai)測試(shi)所得到的粉(fen)(fen)(fen)塵(chen)(chen)排(pai)放(fang)數(shu)據可(ke)見,無(wu)論測試(shi)的除塵(chen)(chen)器(qi)樣機入口粉(fen)(fen)(fen)塵(chen)(chen)量怎樣變化(hua),其(qi)出(chu)口粉(fen)(fen)(fen)塵(chen)(chen)排(pai)放(fang)量完(wan)全可(ke)以(yi)(yi)達到<5mg/m3(標)。我(wo)們可(ke)以(yi)(yi)相信(xin),以(yi)(yi)上工藝布置是解決水泥(ni)生產氮氧化(hua)物超(chao)低排(pai)放(fang)的最(zui)佳方案之一,它既可(ke)以(yi)(yi)保持(chi)常規催化(hua)劑最(zui)適宜的脫硝催化(hua)溫(wen)度,又可(ke)以(yi)(yi)保持(chi)持(chi)久的催化(hua)活性。
值得注意的是,水泥廢(fei)(fei)氣中(zhong)有(you)害元素含(han)量(liang)(liang)遠遠高(gao)于燃煤鍋爐廢(fei)(fei)氣,例如(ru)窯(yao)灰中(zhong)鉈(Ti)含(han)量(liang)(liang)一(yi)般可達到5~8mg/kg。國外有(you)研究表(biao)明,廢(fei)(fei)氣中(zhong)的鉈會致使(shi)催(cui)化劑中(zhong)毒,而且(qie)鉈主要富集在(zai)微細粉(fen)塵中(zhong)。而我們提(ti)出的新型低塵布置方(fang)案,在(zai)催(cui)化反應器前完(wan)全(quan)實現了超(chao)低粉(fen)塵含(han)量(liang)(liang),相信(xin)能很好地(di)解決鉈中(zhong)毒問題。
目(mu)前已經(jing)有研(yan)(yan)究成果將超高溫過濾(lv)與催(cui)化(hua)劑結合(he),這將簡化(hua)SCR脫(tuo)硝工藝,提高催(cui)化(hua)效率,其(qi)中以(yi)陶(tao)瓷纖維過濾(lv)材料(liao)與催(cui)化(hua)劑復合(he)產(chan)品技術較為超前,我們應給予重視(shi)和研(yan)(yan)究。
部分(fen)地區水泥原(yuan)、燃料(liao)含硫量較高,在預熱器(qi)前級SO2已經釋放到廢氣(qi)中,我們(men)也不(bu)(bu)得不(bu)(bu)考慮(lv)高SO2廢氣(qi)含量對SCR脫(tuo)硝及整個工藝系(xi)統(tong)的(de)影(ying)響。SCR脫(tuo)硝應(ying)用在很(hen)大(da)程度上受到煙氣(qi)中SO2含量的(de)制約,SO2含量越高,操作時的(de)煙氣(qi)溫(wen)度要(yao)求也就(jiu)越高,否則(ze)就(jiu)會因為硫酸氫銨+粉塵(chen)的(de)沉積過(guo)多而堵塞蜂(feng)窩催化劑的(de)開口部或后續設備(余熱鍋爐(lu)或除塵(chen)器(qi))。
由于(yu)煙氣中(zhong)存(cun)在SO2等氣體,催化(hua)劑中(zhong)的(de)活性成分釩(fan)盡管是選擇催化(hua)降解(jie)NOx的(de),但也會(hui)對SO2的(de)氧化(hua)起到(dao)一定的(de)催化(hua)作用,SO2的(de)氧化(hua)率(lv)隨(sui)活性組分V2O5含量的(de)增加(jia)而(er)上升,其反應式如下(xia):

硫(liu)酸(suan)(suan)氫銨(an)的(de)露(lu)點(dian)為147℃,在通(tong)常運行(xing)溫度(du)下,以液體(ti)形式在物(wu)體(ti)表面聚集(ji)或以液滴形式分散于煙氣中(zhong)。液態的(de)硫(liu)酸(suan)(suan)氫銨(an)是(shi)一(yi)種粘性很(hen)強的(de)物(wu)質,在煙氣中(zhong)會粘附飛灰。當(dang)溫度(du)繼續升(sheng)高至250℃以上(shang),硫(liu)酸(suan)(suan)氫銨(an)會由(you)液態轉化為氣態。
而(er)氨(an)逃逸(yi)會隨(sui)運行時間發生變化,氨(an)逃逸(yi)率主要取決于注入氨(an)流(liu)量分布均勻情況(kuang)和設定(ding)的(de)NH3/NOx摩爾比(bi)。
含硫廢氣實(shi)施SCR脫硝,為避免硫酸氫銨結(jie)露,我們(men)必須要:
(1)提(ti)高SCR反應溫(wen)度,盡量保證后續余熱(re)(re)鍋爐出(chu)口溫(wen)度在250℃左(zuo)右,廢氣余熱(re)(re)隨后再用于烘干原(yuan)料。如果需要(yao)降低(di)余熱(re)(re)鍋爐出(chu)口溫(wen)度,要(yao)對鍋爐后段爐膛(tang)表面進行處理,以便于清理結皮,同時要(yao)設(she)置(zhi)高壓水沖(chong)洗裝置(zhi),定期清理硫酸氫(qing)銨結皮。
硫酸(suan)氫(qing)銨(an)結(jie)露(lu)對(dui)于后續除塵(chen)器的影響(xiang)很(hen)復雜(za)。如果(guo)出余熱鍋爐廢氣用于原料(liao)烘干,硫酸(suan)氫(qing)銨(an)會(hui)被原料(liao)稀釋,一般不(bu)會(hui)糊袋(dai)(dai)。但窯系統(tong)與原料(liao)烘干磨(mo)的運轉(zhuan)是不(bu)同步的,當(dang)停磨(mo)時,結(jie)露(lu)的硫酸(suan)氫(qing)銨(an)就(jiu)會(hui)使除塵(chen)器糊袋(dai)(dai),阻(zu)力持續升高(gao),致使系統(tong)不(bu)能通(tong)風。這就(jiu)要(yao)求出袋(dai)(dai)除塵(chen)器氣體(ti)溫度>250℃,否則(ze),一旦糊袋(dai)(dai)很(hen)難處理。
(2)盡(jin)量減少(shao)氨(an)(an)的逃逸。脫硝(xiao)設(she)備結構設(she)計前應進(jin)行流場數(shu)字模擬分析,以(yi)使氣(qi)體流場分布均勻,操作要控制(zhi)好NH3/NOx摩爾比;不建議在SCR催化前采用(yong)SNCR或氨(an)(an)法脫硫(包括復(fu)合脫硫的水劑注入),以(yi)免氨(an)(an)逃逸過量。
(3)盡量在無塵(chen)工況下(xia)實施SCR脫硝。這就是我們提出的在高(gao)溫段實現(xian)超低粉塵(chen)工況非常必要。
針對(dui)以上(shang)技術及產品,天津院環保公司已經開始小規模工業應用實(shi)驗(yan),待(dai)實(shi)驗(yan)結果達到預(yu)期后(hou),將在(zai)水泥生(sheng)產線中推(tui)廣應用,實(shi)現水泥窯廢(fei)氣氮氧化物(wu)的超低排放。
3.3二氧化硫(liu)超低排(pai)放技術與實踐
石(shi)(shi)灰(hui)(hui)石(shi)(shi)是(shi)生(sheng)(sheng)產(chan)水泥的主(zhu)要原(yuan)(yuan)材料,大多數水泥廠(chang)使(shi)用(yong)的石(shi)(shi)灰(hui)(hui)石(shi)(shi)含硫(liu)量(liang)很低(di),一(yi)般(ban)不(bu)會造成SO2超(chao)(chao)標排(pai)放,但(dan)確有部分地區石(shi)(shi)灰(hui)(hui)石(shi)(shi)含硫(liu)量(liang)很高(gao)。隨(sui)著品位的降(jiang)低(di)以及石(shi)(shi)灰(hui)(hui)石(shi)(shi)地域的限制,低(di)鈣(gai)高(gao)硫(liu)石(shi)(shi)灰(hui)(hui)石(shi)(shi)大量(liang)應用(yong),原(yuan)(yuan)料預(yu)熱(re)初期(qi)SO2就已產(chan)生(sheng)(sheng),加上采(cai)用(yong)高(gao)硫(liu)煤或高(gao)硫(liu)石(shi)(shi)油(you)焦等(deng)燃料,超(chao)(chao)出了燒成過程(cheng)中的固硫(liu)量(liang),造成水泥窯(yao)煙氣中SO2排(pai)放濃度嚴重(zhong)超(chao)(chao)標。解決水泥生(sheng)(sheng)產(chan)中硫(liu)的超(chao)(chao)低(di)排(pai)放問題(ti)是(shi)許(xu)多SO2排(pai)放超(chao)(chao)標工廠(chang)的重(zhong)要課題(ti)。
煙(yan)(yan)(yan)(yan)氣(qi)脫(tuo)(tuo)硫(liu)的(de)基本(ben)原理是酸堿(jian)(jian)中和(he)反應(ying)。煙(yan)(yan)(yan)(yan)氣(qi)中的(de)二氧化(hua)硫(liu)是酸性物(wu)質(zhi)(zhi),通(tong)過(guo)與堿(jian)(jian)性物(wu)質(zhi)(zhi)發生反應(ying),生成亞(ya)硫(liu)酸鹽或硫(liu)酸鹽,從而將煙(yan)(yan)(yan)(yan)氣(qi)中的(de)二氧化(hua)硫(liu)脫(tuo)(tuo)除。最常用的(de)堿(jian)(jian)性物(wu)質(zhi)(zhi)是石灰(hui)石、生石灰(hui)和(he)熟石灰(hui),也可用氨等(deng)其他堿(jian)(jian)性物(wu)質(zhi)(zhi)。一般分為(wei)濕法(fa)煙(yan)(yan)(yan)(yan)氣(qi)脫(tuo)(tuo)硫(liu)技(ji)術和(he)干法(fa)煙(yan)(yan)(yan)(yan)氣(qi)脫(tuo)(tuo)硫(liu)技(ji)術(含半干法(fa)煙(yan)(yan)(yan)(yan)氣(qi)脫(tuo)(tuo)硫(liu)技(ji)術)兩類。
濕法煙(yan)氣(qi)脫(tuo)(tuo)(tuo)硫(liu)技術(shu)(shu)是指吸(xi)收劑為(wei)(wei)液(ye)體或(huo)漿(jiang)液(ye),反應(ying)(ying)生(sheng)成(cheng)物(wu)呈(cheng)漿(jiang)液(ye)態。由于是氣(qi)液(ye)反應(ying)(ying),所以反應(ying)(ying)快,效率高,脫(tuo)(tuo)(tuo)硫(liu)劑利用率高。石(shi)灰(hui)石(shi)—石(shi)膏(gao)法煙(yan)氣(qi)脫(tuo)(tuo)(tuo)硫(liu)技術(shu)(shu)最為(wei)(wei)常(chang)用,該技術(shu)(shu)以石(shi)灰(hui)石(shi)漿(jiang)液(ye)為(wei)(wei)脫(tuo)(tuo)(tuo)硫(liu)劑,在吸(xi)收塔內對煙(yan)氣(qi)進行噴淋(lin)洗滌,與煙(yan)氣(qi)中(zhong)的(de)二氧化硫(liu)反應(ying)(ying)生(sheng)成(cheng)亞硫(liu)酸(suan)鈣,同時(shi)向(xiang)吸(xi)收塔的(de)漿(jiang)液(ye)中(zhong)鼓(gu)入空氣(qi),強(qiang)制(zhi)使(shi)亞硫(liu)酸(suan)鈣轉化為(wei)(wei)硫(liu)酸(suan)鈣,脫(tuo)(tuo)(tuo)硫(liu)劑的(de)副產品為(wei)(wei)石(shi)膏(gao)。該系統(tong)包括脫(tuo)(tuo)(tuo)硫(liu)劑漿(jiang)液(ye)制(zhi)備(bei)系統(tong)、吸(xi)收塔脫(tuo)(tuo)(tuo)硫(liu)系統(tong)、煙(yan)氣(qi)換熱系統(tong)、石(shi)膏(gao)脫(tuo)(tuo)(tuo)水和(he)廢水處理系統(tong)。石(shi)灰(hui)石(shi)價格便宜,易(yi)于運(yun)輸(shu)和(he)保存,已成(cheng)為(wei)(wei)濕法煙(yan)氣(qi)脫(tuo)(tuo)(tuo)硫(liu)工(gong)藝(yi)中(zhong)的(de)主要脫(tuo)(tuo)(tuo)硫(liu)劑。石(shi)灰(hui)石(shi)—石(shi)膏(gao)法煙(yan)氣(qi)脫(tuo)(tuo)(tuo)硫(liu)效率高(≥95%,不(bu)計成(cheng)本可(ke)(ke)達100%),工(gong)作可(ke)(ke)靠(kao)性高,是濕法煙(yan)氣(qi)脫(tuo)(tuo)(tuo)硫(liu)工(gong)藝(yi)的(de)優(you)先(xian)選擇。但該法易(yi)造成(cheng)設備(bei)堵塞和(he)后續煙(yan)道腐蝕,脫(tuo)(tuo)(tuo)硫(liu)廢水還需處理。
干(gan)(gan)(gan)法(半干(gan)(gan)(gan)法)脫(tuo)(tuo)(tuo)硫是將脫(tuo)(tuo)(tuo)硫粉劑投入(ru)爐中或(huo)摻(chan)入(ru)燒成原料中進行(xing)(xing)固硫或(huo)脫(tuo)(tuo)(tuo)硫反(fan)應的(de)工(gong)藝(yi),干(gan)(gan)(gan)法脫(tuo)(tuo)(tuo)硫后(hou)的(de)產(chan)品(pin)呈干(gan)(gan)(gan)燥狀態(tai)。由于(yu)這種化學(xue)反(fan)應在干(gan)(gan)(gan)態(tai)(無水)很(hen)難發生,需要反(fan)應系統有水或(huo)人為干(gan)(gan)(gan)預這一反(fan)應過(guo)程才能實現。前(qian)(qian)者(zhe)如需加水工(gong)藝(yi)自然屬于(yu)半干(gan)(gan)(gan)法,后(hou)者(zhe)是國(guo)際上還在研究試驗中的(de)電(dian)子(zi)束照射法(EBA)及等離子(zi)體化學(xue)法(PPCP)脫(tuo)(tuo)(tuo)硝(xiao)脫(tuo)(tuo)(tuo)硫技(ji)術等,但實驗中吸(xi)收劑都用(yong)氨,屬于(yu)大幅度提(ti)高脫(tuo)(tuo)(tuo)硝(xiao)脫(tuo)(tuo)(tuo)硫反(fan)應效率技(ji)術,目前(qian)(qian)還不夠成熟(shu),存在運(yun)行(xing)(xing)費用(yong)高和運(yun)行(xing)(xing)不穩(wen)定(ding)等諸多(duo)問題,尚不能大規模工(gong)業應用(yong)。
關于(半(ban))干(gan)法(fa)脫硫有許多技術(shu)種類:例如爐內噴(pen)鈣(gai)尾部增(zeng)濕法(fa)(LIFAC);脫硫劑料漿噴(pen)霧干(gan)燥法(fa)和(he)基于循環技術(shu)的(de)(de)CFB工藝、ALSTOM公司的(de)(de)NID技術(shu)等。他們的(de)(de)基本原理(li)都是利用(yong)CaO粉或熟石灰粉Ca(OH)2吸收煙(yan)氣中(zhong)的(de)(de)SO2,反應式為:

對(dui)于水泥(ni)窯尾廢氣(qi)干法脫(tuo)(tuo)(tuo)硫(liu)(liu)目(mu)前還有(you)一種方案(an)—復(fu)合脫(tuo)(tuo)(tuo)硫(liu)(liu)技術(shu):該復(fu)合脫(tuo)(tuo)(tuo)硫(liu)(liu)技術(shu)中脫(tuo)(tuo)(tuo)硫(liu)(liu)粉(fen)劑(ji)采用鈣基加催化劑(ji)配方,在預(yu)熱器的尾端風(feng)管還要配合噴水劑(ji),增加了鈣基反應活性,產生的硫(liu)(liu)酸鹽隨生料(liao)入(ru)窯鍛燒成水泥(ni)熟料(liao),所謂以(yi)“固硫(liu)(liu)”為主,控制好則可(ke)以(yi)達到(dao)較(jiao)高的脫(tuo)(tuo)(tuo)硫(liu)(liu)效率。
與濕(shi)法(fa)脫硫(liu)工藝相比較(jiao)(jiao),干(gan)法(fa)(半干(gan)法(fa))脫硫(liu)工藝產生的(de)脫硫(liu)灰成分比較(jiao)(jiao)復雜,高(gao)(gao)硫(liu)高(gao)(gao)鈣且(qie)CaSO3·1/2H2O比例較(jiao)(jiao)高(gao)(gao),因而表(biao)現出不同(tong)(tong)的(de)物化(hua)特性,在燒(shao)成的(de)過程會(hui)造(zao)成水(shui)泥熟料物化(hua)性能的(de)波(bo)動。同(tong)(tong)時(shi)因水(shui)泥干(gan)法(fa)脫硫(liu)劑成本較(jiao)(jiao)高(gao)(gao),人們對干(gan)法(fa)脫硫(liu)工藝多(duo)持審慎態度。
如(ru)上(shang)所(suo)述,濕法脫(tuo)硫雖然是第(di)一代(dai)(70年代(dai))脫(tuo)硫技術,但更適用于水泥工業(ye)脫(tuo)硫。理由如(ru)下:
(1)石灰(hui)—石膏濕法脫(tuo)硫(liu)(liu)(liu)技術最成熟可靠(kao),脫(tuo)硫(liu)(liu)(liu)效率高,是實現(xian)水泥(ni)窯廢氣(qi)(qi)SO2超(chao)低排(pai)放的最好選擇,特別適合硫(liu)(liu)(liu)含量高的水泥(ni)窯廢氣(qi)(qi)。
(2)由于(yu)石(shi)灰粉是(shi)水泥生產的原料,取生料或窯尾回灰作為脫硫劑,經濟(ji)又方便(bian)。
(3)脫(tuo)硫副產(chan)品二水(shui)石膏完全(quan)可(ke)以用(yong)作(zuo)水(shui)泥(ni)添加劑,沒有(you)廢料(liao)產(chan)生(sheng)。
我們近期完(wan)(wan)成投(tou)運了多項水泥(ni)(ni)窯石(shi)(shi)(shi)灰—石(shi)(shi)(shi)膏濕法脫硫技改(gai)工程(cheng),如大冶尖峰(feng)水泥(ni)(ni)(見圖(tu)20)、馬(ma)來(lai)西(xi)亞(ya)馬(ma)口(kou)(kou)水泥(ni)(ni)、中材云浮、亨達水泥(ni)(ni)廠等,完(wan)(wan)全實現了SO2超低排(pai)(pai)放,其中尖峰(feng)水泥(ni)(ni)在初(chu)始SO2含(han)(han)量2500mg/m3(標(biao)(biao))情況(kuang)下(xia),出口(kou)(kou)SO2含(han)(han)量<35mg/m3(標(biao)(biao))(塵含(han)(han)量<10mg/m3(標(biao)(biao))),充分說(shuo)明了水泥(ni)(ni)窯石(shi)(shi)(shi)灰—石(shi)(shi)(shi)膏濕法脫硫是實現超低排(pai)(pai)放的理(li)想措施(shi)。
4 綜合實施(shi)水泥(ni)窯廢氣超低排放(fang)的新探討
面論述了(le)工(gong)(gong)業廢氣(qi)超低排(pai)(pai)放技術及其在(zai)水(shui)(shui)泥(ni)工(gong)(gong)業廢氣(qi)中(zhong)(zhong)粉塵、氮氧化物、二(er)氧化硫等單項減排(pai)(pai)技術的研究與部(bu)分(fen)實(shi)踐(jian),使我(wo)們相信,在(zai)水(shui)(shui)泥(ni)生產工(gong)(gong)藝中(zhong)(zhong)植(zhi)入(ru)高溫除(chu)(chu)塵+SCR催化器,原窯尾及生料(liao)(liao)磨除(chu)(chu)塵器不(bu)變(bian),能解決生料(liao)(liao)磨后(hou)廢氣(qi)除(chu)(chu)塵排(pai)(pai)放。如果水(shui)(shui)泥(ni)窯廢氣(qi)二(er)氧化硫超標,生料(liao)(liao)磨袋除(chu)(chu)塵器后(hou)增設石(shi)灰—石(shi)膏濕法脫硫,理論上是完(wan)全可以實(shi)現超低排(pai)(pai)放的。

近年來我(wo)國(guo)新材(cai)料(liao)(liao)技術(shu)發展很(hen)快,比如超(chao)高(gao)溫過濾材(cai)料(liao)(liao),陶瓷纖(xian)維過濾材(cai)料(liao)(liao),金屬(shu)纖(xian)維氈、金屬(shu)間(jian)化合物多(duo)孔材(cai)料(liao)(liao)及膜材(cai)料(liao)(liao)(可(ke)(ke)適應氣(qi)體溫度300~800℃),甚至實(shi)(shi)現完美附著(zhu)脫硝(xiao)催化劑的超(chao)高(gao)溫過濾材(cai)料(liao)(liao)(可(ke)(ke)適應氣(qi)體溫度300~500℃)等(deng)紛(fen)紛(fen)涌現,這就為我(wo)們實(shi)(shi)施新的工(gong)藝新的技術(shu)去實(shi)(shi)現廢氣(qi)超(chao)低排放提(ti)供(gong)了可(ke)(ke)能(neng)。
新(xin)型干法水泥(ni)窯(yao)尾五級預(yu)熱器出一級旋風(feng)筒C1的廢氣溫(wen)度一般是(shi)320~350℃,而SCR技術(shu)的常規催(cui)(cui)(cui)化(hua)劑催(cui)(cui)(cui)化(hua)窗(chuang)口90%以上為(wei)中(zhong)高溫(wen)(280~400℃),這個(ge)溫(wen)度區間適合采(cai)用SCR脫硝(xiao)技術(shu)。如果(guo)解決(jue)了催(cui)(cui)(cui)化(hua)劑的磨(mo)損和中(zhong)毒問題(ti),按照前面脫硝(xiao)部分的技術(shu)分析,在C1旋風(feng)筒后增設高溫(wen)除塵(chen)器+中(zhong)高溫(wen)催(cui)(cui)(cui)化(hua)劑的低塵(chen)(<10mg/m3(標))布置方案,是(shi)實現氮氧化(hua)物超低排放的一個(ge)不錯選擇。
問題是(shi)怎樣才能(neng)實施(shi)呢?特別是(shi)現(xian)有(you)窯尾系統的改(gai)(gai)造布置(zhi)困(kun)難更大。通過研究(jiu)探討(tao)我們認為,實際生產線中有(you)兩個地(di)方是(shi)可以布置(zhi)的:一(yi)是(shi)增濕塔(ta)(ta)改(gai)(gai)造為高溫除塵(chen)(chen)+催化(hua)反應(ying)器(圖21)。這種(zhong)改(gai)(gai)造更適合兩風機(ji)系統,因為一(yi)般兩風機(ji)系統增濕塔(ta)(ta)距離預熱(re)器很近,改(gai)(gai)造管路較少較短,熱(re)損(sun)失小,只需將SP爐串聯到塔(ta)(ta)(高溫除塵(chen)(chen)+催化(hua)反應(ying)器)后即可。
二是將C1旋風(feng)筒(tong)改為高(gao)溫(wen)(wen)(wen)除(chu)塵器+催(cui)化反(fan)應器(圖22)。這種(zhong)改造(zao)直接(jie)改變了(le)生產工(gong)藝,但C1旋風(feng)筒(tong)的(de)(de)主要功能是高(gao)效除(chu)塵,而用高(gao)溫(wen)(wen)(wen)過濾材料開發出的(de)(de)高(gao)溫(wen)(wen)(wen)高(gao)效低阻的(de)(de)除(chu)塵器可以(yi)完(wan)美(mei)替代C1旋風(feng)筒(tong)功能,C2-C1風(feng)管的(de)(de)換熱功能也不受影響。設(she)計高(gao)溫(wen)(wen)(wen)除(chu)塵器及SCR催(cui)化反(fan)應器的(de)(de)阻力不高(gao)于C1旋風(feng)筒(tong)的(de)(de)阻力,廢氣(qi)接(jie)觸(chu)催(cui)化劑的(de)(de)溫(wen)(wen)(wen)度還能有所提高(gao),理論上這絕(jue)對是一(yi)個(ge)完(wan)美(mei)的(de)(de)水(shui)泥超(chao)低排放解決方案(an)。方案(an)適合(he)三風(feng)機系統,也適合(he)兩風(feng)機系統,更適合(he)高(gao)硫(liu)煙氣(qi)的(de)(de)脫硝(xiao)。


這種方案還會(hui)帶給我們額外的收益:
(1)后續SP爐無粉塵磨損;
(2)換(huan)熱效率高;
(3)由于是雙除(chu)塵系統,最(zui)終(zhong)粉塵的(de)超(chao)低排放更可(ke)靠。
此方案我們正在(zai)進行工業中試,待有滿(man)意(yi)的結果后(hou),正式(shi)推向工業應用(yong),以真(zhen)正實現水泥(ni)工業廢氣超低(di)排放。
5結語
泥工業廢(fei)(fei)氣(qi)超(chao)低排放解決方案(an)(an)還有多種,例如低溫(wen)催(cui)化(hua)劑脫硝方案(an)(an)、干(gan)法脫硫劑固硫方案(an)(an)等。但(dan)相(xiang)信本文探討的(de)(de)方案(an)(an),在(zai)水(shui)泥生產工藝中植入高溫(wen)除(chu)塵(chen)+SCR催(cui)化(hua)器(qi),保(bao)留原窯尾(wei)及生料磨除(chu)塵(chen)器(qi),如果水(shui)泥廢(fei)(fei)氣(qi)二氧(yang)化(hua)硫超(chao)標,生料磨袋除(chu)塵(chen)器(qi)后(hou)增設石灰—石膏(gao)濕法脫硫,是現在(zai)實現水(shui)泥窯廢(fei)(fei)氣(qi)超(chao)低排放的(de)(de)最好(hao)的(de)(de)技術路線(xian)。
山東新(xin)(xin)澤儀(yi)器(qi)有限公司主要(yao)致力于環境監(jian)測(ce)儀(yi)器(qi)及工業(ye)過程氣(qi)體分析(xi)系統的研發、生(sheng)產、銷售和代理,新(xin)(xin)澤人(ren)一直(zhi)在(zai)努力的做到(dao)(dao),選擇我(wo)們(men)就是(shi)選擇了優(you)質(zhi)產品和優(you)質(zhi)服(fu)務,我(wo)們(men)做到(dao)(dao)的不(bu)僅(jin)(jin)僅(jin)(jin)是(shi)你們(men)能看到(dao)(dao)的,希(xi)望我(wo)們(men)提(ti)供的氣(qi)體檢(jian)測(ce)儀(yi)、煙氣(qi)在(zai)線(xian)監(jian)測(ce)系統、氨逃逸(yi)分析(xi)儀(yi)、磨煤(mei)機CO分析(xi)系統等都能給(gei)您帶來不(bu)一樣的使用(yong)感受(shou)。歡迎來電咨詢探(tan)討交流。lm


需求溝通傾聽客戶需求,了解用戶使用環境和現場工況
方案設計根據現場實際工況,針對性出具解決方案
合同簽訂技術和商務規范確認,簽訂合作協議
產品制作選擇最優質的元器件,嚴格按照技術協議
調試安裝現場規范安裝,靜態動態調試,分析儀運行
售后服務后續維護,持續跟進,終身維修